EDIFÍCIO DE USO MISTO - CASAS GEMINADAS E COMÉRCIO RC
Ribeirão Claro / PR
Localizado na cidade de Ribeirão Claro, no estado do Paraná, este edifício de uso misto reúne duas casas geminadas e um salão comercial em um terreno de aproximadamente 310 m². A marca do projeto está na articulação deliberada de seus três programas na fachada principal: o volume comercial do pavimento superior se projeta em direção à rua, criando uma proteção para quem chega e convidando ao acesso, enquanto os dois volumes residenciais recuam nas laterais, cedendo protagonismo ao uso público no centro.
Um recuo de 3,80 metros percorre toda a fachada frontal, criando um intervalo de transição entre o domínio público da rua e o espaço privado das casas. Esse gradiente espacial é reforçado pelas cores dos pisos drenantes de acesso: as áreas que conduzem às casas são marcadas em vermelho, sinalizando sutilmente seu caráter mais reservado.
O terreno era historicamente sujeito a alagamentos devido à sua topografia plana. Em resposta, a prefeitura elevou a calçada e as guias durante a construção. O projeto complementou essas medidas com a especificação de pisos drenantes em todo o recuo frontal e uma leve elevação do térreo em relação à rua, garantindo o escoamento adequado da água.
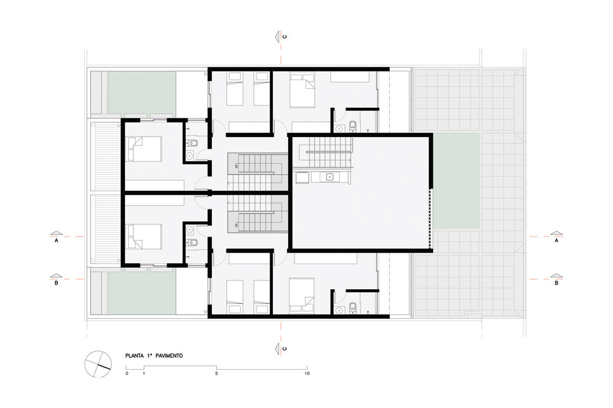
Cada casa geminada possui 159 m², com a área social integrada no térreo, incluindo sala de estar, jantar e cozinha, e três dormitórios no pavimento superior, sendo um deles suíte. A transição entre pavimentos é marcada por uma escada em estrutura metálica com pisos em madeira cumaru, posicionada contra uma parede de concreto aparente em altura total que funciona como o principal plano de fundo espacial da sala. Junto à escada, uma claraboia introduz iluminação zenital no núcleo de circulação, além de proporcionar ventilação por efeito chaminé através de pequenas aberturas operáveis na estrutura dos vidros.
A paleta de materiais é propositalmente contida. Na fachada, o cobogó cerâmico filtra a luz solar no salão comercial do pavimento superior, projetando padrões circulares de luz pelo interior ao longo do dia. No interior das casas, a parede de concreto aparente e a escada metálica estabelecem um diálogo entre a materialidade bruta e a calidez da madeira cumaru, criando uma atmosfera simultaneamente contemporânea e tátil.
O salão comercial possui 88 m² distribuídos entre térreo e pavimento superior. No total, a edificação alcança 406 metros quadrados, uma resposta compacta e claramente articulada ao desafio de integrar moradia e comércio em um único volume urbano.
Projeto selecionado para publicação:
Architizer New York | Brasil Arquitetos
Architizer New York | Brasil Arquitetos