CASA SM 
Ribeirão Claro / PR
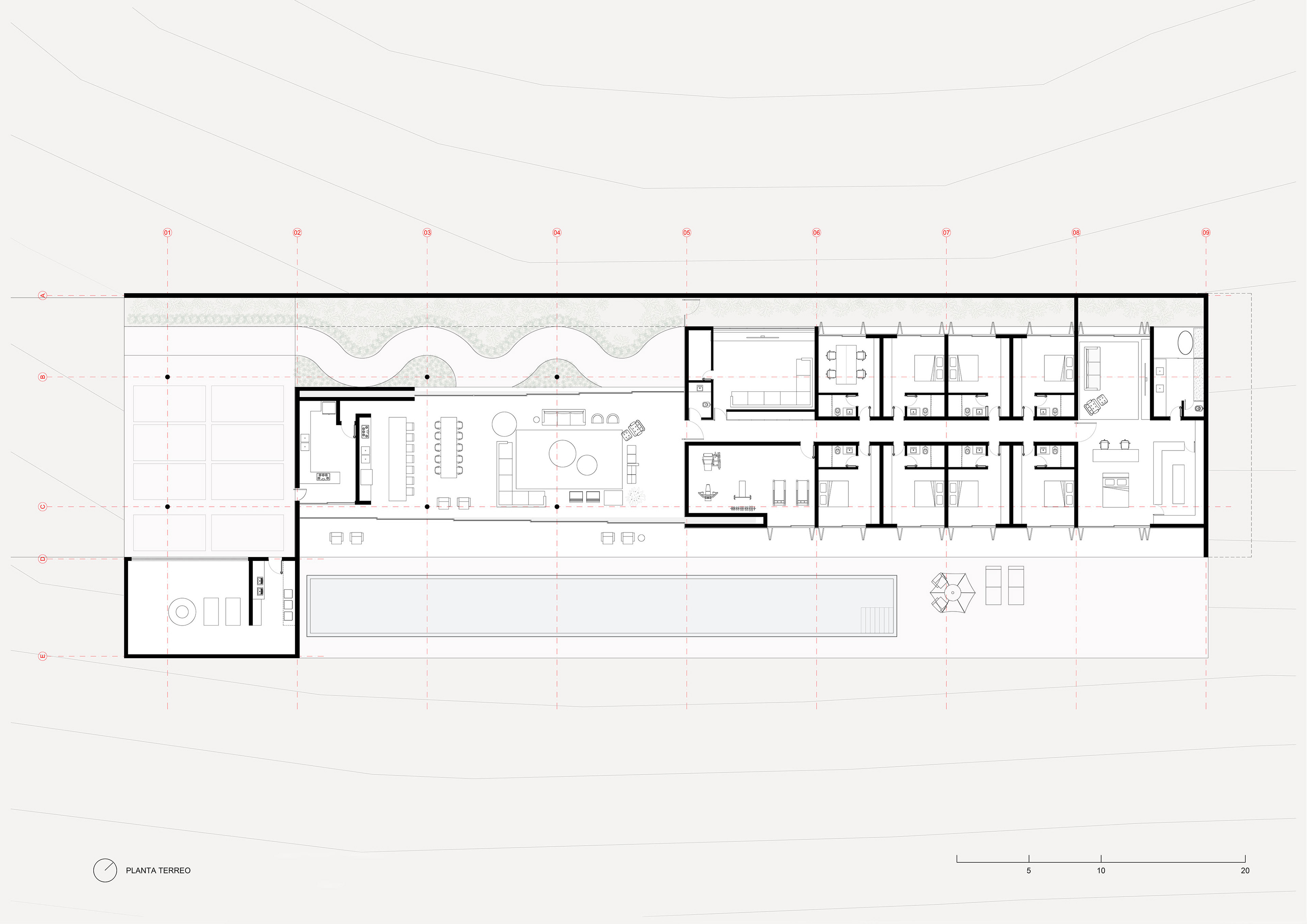
A identidade desse projeto é a sua localização. Em Ribeirão Claro/PR, às margens da represa de Chavantes, a casa SM possui um programa de 8 suítes, com uma área construída de 1900m2 que se distribui no ponto mais alto do terreno e horizontalmente em relação as curvas de nível. A casa aproveita ao máximo a vista da água e da margem oposta da represa (estado de São Paulo).

Com uma implantação silenciosa, a volumetria da casa é discreta e não compete com a paisagem. Na face noroeste encontra-se um grande muro de arrimo revestido de pedra que libera a cota de implantação. Junto ao muro temos uma faixa verde de jardim em grande parte do seu perímetro. Assim como a natureza é a anfitriã de quem chega ao terreno, o jardim recebe e guia o pedestre para um passeio que aos poucos revela a área social da casa voltada para a paisagem.

A cobertura da casa em estrutura metálica se afasta 2 metros em relação ao muro de arrimo, o que permite ventilação cruzada em toda a área social. A piscina com um comprimento generoso de 40 metros se estende pela laje externa da face sudeste. Cinco suítes se voltam para sudeste, enquanto as outras três se abrem para noroeste.

A pedra, a madeira, a estrutura metálica e os pisos em pedras naturais compõem a materialidade da casa.
Back to Top